top of page
ドイツでも不動産の事ならスターツへ

希少4LDKタイプの築浅マンション
Friedrich-Stadt
Area
キッチン付き
Type
4LDK
Room
2.266,-€
Rent
Object No.
5285
エリア:
Friedrich-Stadt
ルームタイプ:
キッチン付き
入居可能日:
即
間取り:
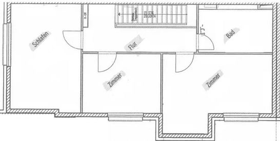
4LDK
住居面積:
138sqm
階数:
地上階
エレベーター:
無
駐車場:
有
住居賃料:
2.266,-€
共益費:
337,-€
暖房費:
366,-€
駐車場賃料:
190,-€
保証金額:
6.790,-€
仲介手数料額:
4.912,-€ +19%VAT
物件の特徴
デュッセルドルフの中心、Königsallee南側エリアの4LDK
本物件は、最高品質の素材と最新設備を備えた
快適性とデザイン性を両立する住まいです。
各居室にはオーク無垢材フローリングと床暖房を採用。
天候や季節を問わず、常に理想的な温度で快適な空間を保ちます。
温度は各部屋ごとに個別調整可能なサーモスタットでコントロール可能です。
リビングには大型の開口部と電動シャッターを備え、
自然光をたっぷりと取り入れる明るく開放的な空間を実現。
壁は**高級Malervlies仕上げ(スムースペイント壁)**で、
白を基調としたシンプルで上質なインテリアが広がります。
🪴 建物概要
タウンハウス(庭付き・サンデッキ付)
* 南向き配置で日当たり抜群
* プライベートな中庭空間と明るい通路設計
* 住居階へ直通エレベーター付き大型地下駐車場
* 住民専用管理人サービス(Hausmeister)
🌿 ロケーション
「南Kö」エリアは、Königsallee通りや市中心部へのアクセスが良く、
周辺には高級ブティックやレストラン、文化施設が揃う人気エリアです。
一方で、敷地内は緑と静寂に包まれており、
都心でありながら穏やかな住環境が広がります。
🏠 主な設備一覧
* 床暖房(全室)
* オーク無垢材フローリング
* 壁:高品質Malervlies仕上げ
* 電動シャッター
* バスルーム:Villeroy & Boch大型タイル/Duravitバスタブ
* 洗濯機接続口
* エレベーター/地下駐車場直通
* Hausmeisterservice
* ケーブルTV・インターフォン
* Terrasse/Loggia付き住戸あり

Jahnstraße 13j, 40215 Düsseldorf, ドイツ


bottom of page




